Medeina Voverė | Boutique interjero dizainas

Sienų atspalviai ir durys

Sienų atspalviai ir durys

VILNIUS, ŽIRMŪNAI

Atspalvių pasirinkimas namų sienoms gali būti įdomus ir kūrybiškas procesas. Šis butas nėra nei labai didelis, nei saulėtas, tad noras rinktis tik šviesius dažus buvo natūralus ir suprantamas. Tačiau nors kambariams šilta balta spalva yra labai tinkama, ja apsiriboję būtume praradę šansą sukurti unikalius ir išskirtinius namus. Tamsios, sodrios spalvos, naudojamos saikingai, yra puikus būdas namams suteikti šiek tiek je ne sais quois.

Stilistiniai koliažai padeda nepasimesti ir kurti vientisą stilių

Pirmasis žingsnis, kuris padėjo kurti vientisą stilių šiame senos statybos bute buvo stilistinių koliažų kūrimas. Jie – lyg juodraštis, padedantis nepasiklysti spalvų ir atspalvių įvairovėje, nesiblaškyti ties patinkančiais, bet prie projekto paletės nederančiais baldais, dažais ir audiniais.

Kaip matote koliažuose, patalpos neprivalo būti identiškos, bet svarbu išlaikyti vientisumą. Kaip tai padaryti? Pasikartojantys akcentai (pvz.: rankenėlių dizainas, plytelės) ir atspalviai, derantys prie kitų elementų kambariuose, kuria estetišką ir harmoningą interjerą.

Svetainės koliažas
Svetainė
Virtuvės koliažas
Virtuvė
Miegamojo_koliažas
Miegamasis
Vonios koliažas
Vonia

Kokia spalva dažyti sienas?

Sienas ir pertvaras dažėme Benjamin Moore „White Down“ atspalviu (jam artimiausias daugelio gamintojų spalvos kodas yra NCS S 0804-Y30R arba G0.04.81). Tai – subtiliai šilta, nei per daug geltona, nei per daug persikinė balta. Tiesa, miegamajame greta lango auga tankus medis, todėl šiltuoju metų laiku sienų atspalvis turėjo žalsvą toną. Tai – natūralu, tačiau kartais žmonės nustemba, kaip tais pačiais dažais nudažytos sienos atrodo skirtingos kituose kambariuose. 

Jei šis atspalvis jums pasirodys per tamsus, verta išbandyti NCS S 0500N baltą ar NCS S 0603-Y20R gelsvai baltą atspalvius.

Dažų atspalviai sienoms
Dažų volelis

Šiltas ir lengvas sienų atspalvis bei balinto ąžuolo rašto grindys sukuria neutralų foną baldams ir interjero detalėms. Sienų dažais dažomos grindjuostės nekrenta į akis ir susilieja su sienomis. Nuotraukose apačioje galite pastebėti, kaip toks sienų ir grindų vientisumas leidžia „suskambėti” paveikslui ar tamsiai perkelio patalynei.

Miegamasis su mėlyna patalyne
Šviesios spalvos sienos ir pilkas fotelis bei ryškus paveikslas

Mėlyno koridoriaus kuriama drama

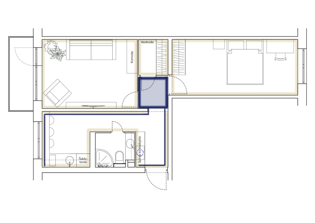
Mažajam koridoriui tarp kambarių pasirinkome sodrią mėlyną Benjamin Moore „Kensington Blue“ spalvą (jai artimiausia kitų gamintojų spalva yra T1.23.25). Šiuo atspalviu dažėme ne tik sienas, bet ir lubas. Tai sukuria dramatišką efektą: gili mėlyna erdvė traukia akį vos įėjus į namus iš laiptinės. Negana to, iš šio sodraus koridoriaus kaskart žengiant į miegamąjį ar svetainę jie atrodo didesni ir šviesesni! Jei nenorite rinktis mėlynos spalvos, būtų galima pasirinkti tamsią žalią, pilko antracito ar melsvai pilką atspalvį. Beje, juo tikrai verta nudažyti ne tik sienas, bet ir lubas!

Išskirtinis akcentas – vieną grindjuostę koridoriuje ir virtuvėje dažėme ta pačia mėlyna spalva.

Miegamasis su mėlyna patalyne
Mėlynos spalvos koridorius

Žemiau esančiame plane pažymėta, kurias sienas dažėme kokiu atspalviu. Siauresne mėlyna linija veda ir tokia spalva nudažytą grindjuostę virtuvėje ir koridoriuje.

Sienų dangų planas

Durys gali sugadinti ar išgelbėti interjerą

Kokybiškos durys yra itin svarbi interjero dalis, o pigios, skubomis išrinktos durys gali LABAI greitai sugadinti visą interjerą! Net jei investuosite į grindų dangas, stilingus minkštus ir korpusinius baldus, užsisakysite aukštesnės klasės vonios keramiką, bet išsirinksite pigiausias duris, visas interjeras atrodys labai prastai. Pigios durys ‘nutemps’ visą interjerą žemyn! Todėl skirkite joms dėmesio.

Šiame projekte durų atspalvį kruopščiai derinau prie grindų. Į saloną vežėmės grindų dangos pavyzdį ir atspalvius vertinome vietoje. Manau, kad pavyko tikrai tiksliai! Pasirinkome minimalistinio dizaino, uosio lukštu dengtas pilnavidures duris. Paslėpti vyriai ir magnetinė spyna ženkliai neišpūtė biudžeto, o durys atrodo estetiškiau bei veikia sklandžiau. Magnetinė spyna, laikanti duris uždarytas ne dėl į apvadą išsikišančio liežuvėlio, o magneto pagalba, yra itin maloni naudoti.

Durų užsakymas
Durų užsakymo forma
Uosio lukšto durys
Lygios, medžio lukštu dengtos durys
Magnetinė spyna
Magnetinė durų spyna
Paslėpti vyriai
Paslėpti vyriai

Lubos

Kurdama interjerą aiškiai žinojau, kad noriu išlaikyti nemažai autentikos. Taip pat nenorėjau „plastikinio” jausmo, nesiekiau idealių linijų ir tobulai išlygintų paviršių (tegul jie lieka naujos statybos būstams). Lubų pasirinkimai atspindėjo mano požiūrį šiame projekte.

Gipso kartono lubos užtikrintų idealų lygumą ir leistų rinktis įdomesnius apšvietimo variantus, tačiau patalpos taptų 7-10 cm žemesnės. Tokios lubos – puikus sprendimas naujos statybos namuose, kai namas dar kurį laiką “vaikšto“. Jos sumažina įtrūkimų lubose tikimybę. Tačiau senesnės statybos namai tos problemos dažniausiai nebeturi – visi trūkiai, kurie galėjo atsirasti per dešimtmečius, greičiausiai jau atsirado. Šiame bute lubų aukštis buvo tik 254 cm, todėl pasirinkome jas nuvalyti ir dažyti baltais matiniais dažais. Tai – turbūt paprasčiausias sprendimas senos statybos bute.

Lubinis šviestuvas su lubų lipdiniu
Vintažinis šviestuvas, restauruotas mūsų baldų dizainerės Rasos

Kai pasiūliau ant lubų klijuoti rozetes, artimieji atrodė sutrikę. Taip, pirma kylanti mintis ne vienam yra “kičas”. Nors naujos statybos name ar bute su tokiu dekoru būčiau labai atsargi, senesnis būstas iš dalies yra atlaidesnis tokiems tradiciniams dekorams kaip lubų rozetės.

Pasirinkome minimalistinio dizaino, lygias rozetes. Mano nuomone, jos subtiliai akcentuoja lubinius šviestuvus ir suteikia erdvei žavesio. Klijavome jas ant nuvalytų lubų ir uždažėme kartu su visu lubų plotu.

Miegamasis šviesios spalvos sienomis

Visame bute klijavome ir minimalistinio dizaino karnizus. Tai daryti pirmiausia reikėjo dėl praktinių sumetimų – lubų ir sienų siūlės tokiuose butuose dažnai yra gana kreivos. Linija tarp baltų lubų ir švelniai gelsvų sienų iškart pabrėžia visus nelygumus. Seniau ši problema būdavo sprendžiama paliekant baltai dažytą juostelę pačiame sienų viršuje, tačiau karnizai šiame projekte, mano nuomone, tiko  labiau. Pasirinkome lygius ir plonus, vos 3,5 cm aukščio karnizus.

Lubų karnizas
Karnizų klijai