Medeina Voverė | Boutique interjero dizainas

Buto išplanavimas ir baldų planas

Buto išplanavimas ir baldų planas

VILNIUS

Standartinio dviejų kambarių buto išplanavimas gali būti keičiamas keliais skirtingais būdais, vieni jų – labai nesudėtingi, kitiems būtinas projektas ir leidimas. Svarbiausia – įvertinti savo gyvenimo būdą ir poreikius, gyventojų skaičių, o baldų planas tai atspindės. Kiekvienas iš čia esančių variantų gali būti tiek puikus, tiek labai nepatogus būtent Jums!

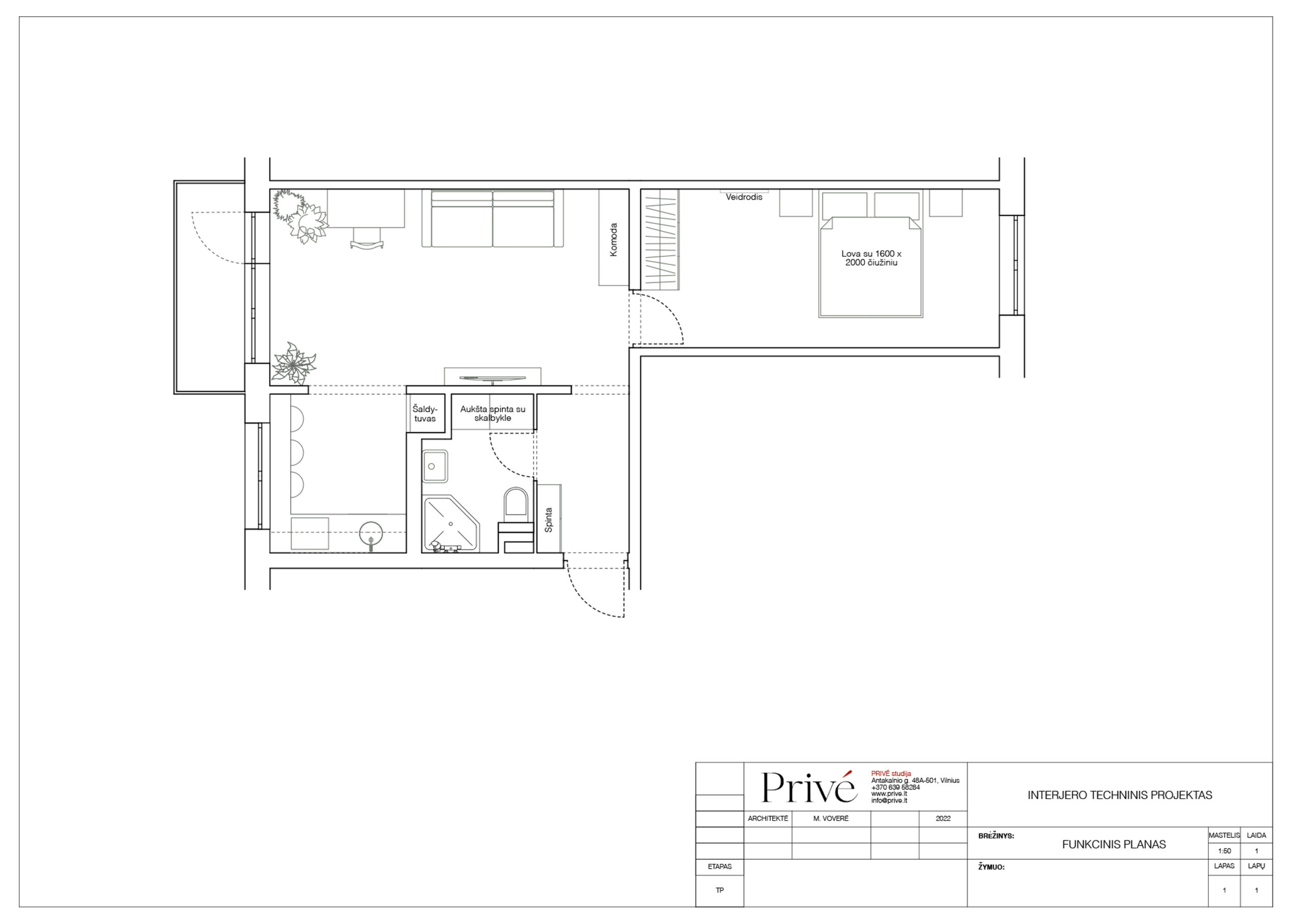
Senas buto išplanavimas - daug trūkumų

Taip atrodo standartinis dviejų kambarių butas, kuriame niekada nebuvo įrengtos papildomos pertvaros. Šis baldų planas atspindi tai, kaip prieš kelis dešimtmečius gyveno nemažai šeimų, tačiau šiandien jis galėtų būti daug patogesnis. Tai – turbūt mažiausiai funkcionalus išdėstymas: pereinamas kambarys neužtikrina privatumo, nedidelė virtuvė ir mažytis vonios kambarys sunkiai sutalpina viską, ko reikia gyvenimui.

Tokiame bute nebuvo numatyta vieta skalbimo mašinai, šiais laikais būtinai kiekvieno namuose. Paprasčiausia būtų ją statyti tarp unitazo ir vonios, virš mašinos montuojant specialiai tam skirtą praustuvą. Tai – toli gražu ne idealus variantas. Tiesa, kartais skalbimo mašina yra perkeliama į virtuvę. Tai – taip pat galimas variantas, tačiau ir taip nedidelė virtuvė taps dar labiau suspausta.

Jei svarstote, kaip atnaujinti tokį butą, mano nuoširdus pasiūlymas būtų pasirinkti vieną iš žemiau esančių galimybių. Jei nesate pasiryžę griauti sienų, galite kambarius atskirti ir suformuoti drabužinę. Jei trokštate didesnio vonios kambario ir gyvensite dviese – verta pagalvoti apie virtuvės ir svetainės sujungimą.

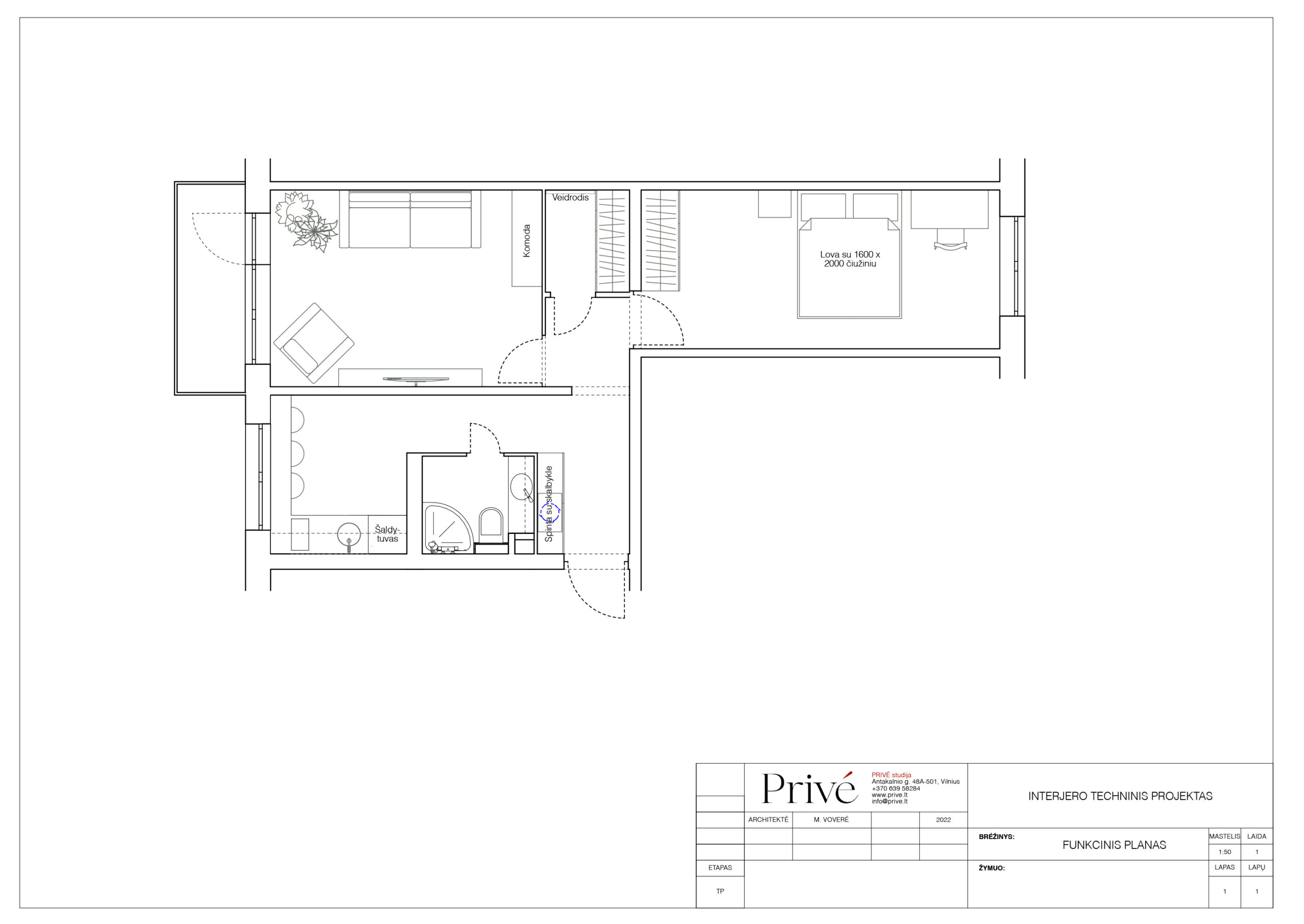
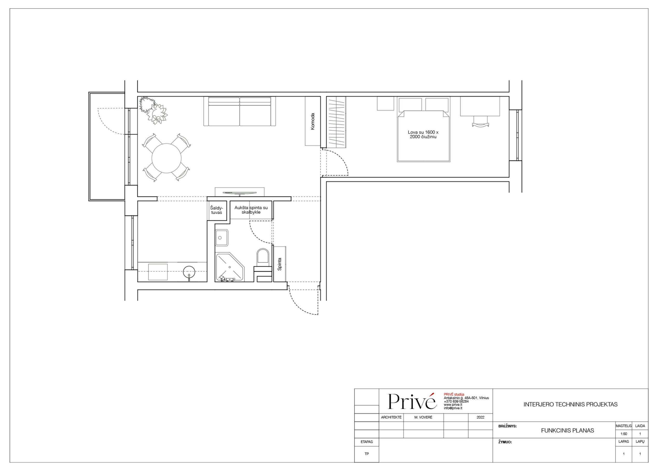
Šiuolaikiškas buto planas: miegamasis ir bendra erdvė

Populiarus, nors turbūt daugeliu atvejų – ne visada teisėtas – išplanavimo variantas.

Kodėl jis ne visada teisėtas? Tokiems darbams būtinas kapitalinio remonto projektas, kaimynų sutikimai ir leidimas darbams vykdyti. Būdama architekte kviečiu susimąstyti:  jei angą išsigriausite jūs, jūsų kaimynai po jumis, kaimynai virš jūsų, kaimynai gretimame bute, tikrai susilpninsite savo namo konstrukcijas. Tačiau Jūs galite šias erdves sujungti laikydamiesi reikalavimų – niekas jūsų nepaskųs dėl neteisėtų darbų, nekils klausimų parduodant tokį būstą.

Jei anga į virtuvę suformuota teisingai, šis pakeitimas tikrai vizualiai praplės jūsų namus ir bus puikus pasirinkimas vienam ar dviems žmonėms. Koridoriaus sąskaita padidintas vonios kambarys, virtuvė sujungta su svetaine, panaikintas mažai naudingas koridorius – toks baldų planas dažniausiai sutinkamas nedideliuose naujos statybos butuose. Jį pasirinkę priartinsite tradicinį išplanavimą prie modernaus ir šiuo metu tikrai populiaraus išdėstymo! 

Senos statybos buto planas
Senos statybos buto planas

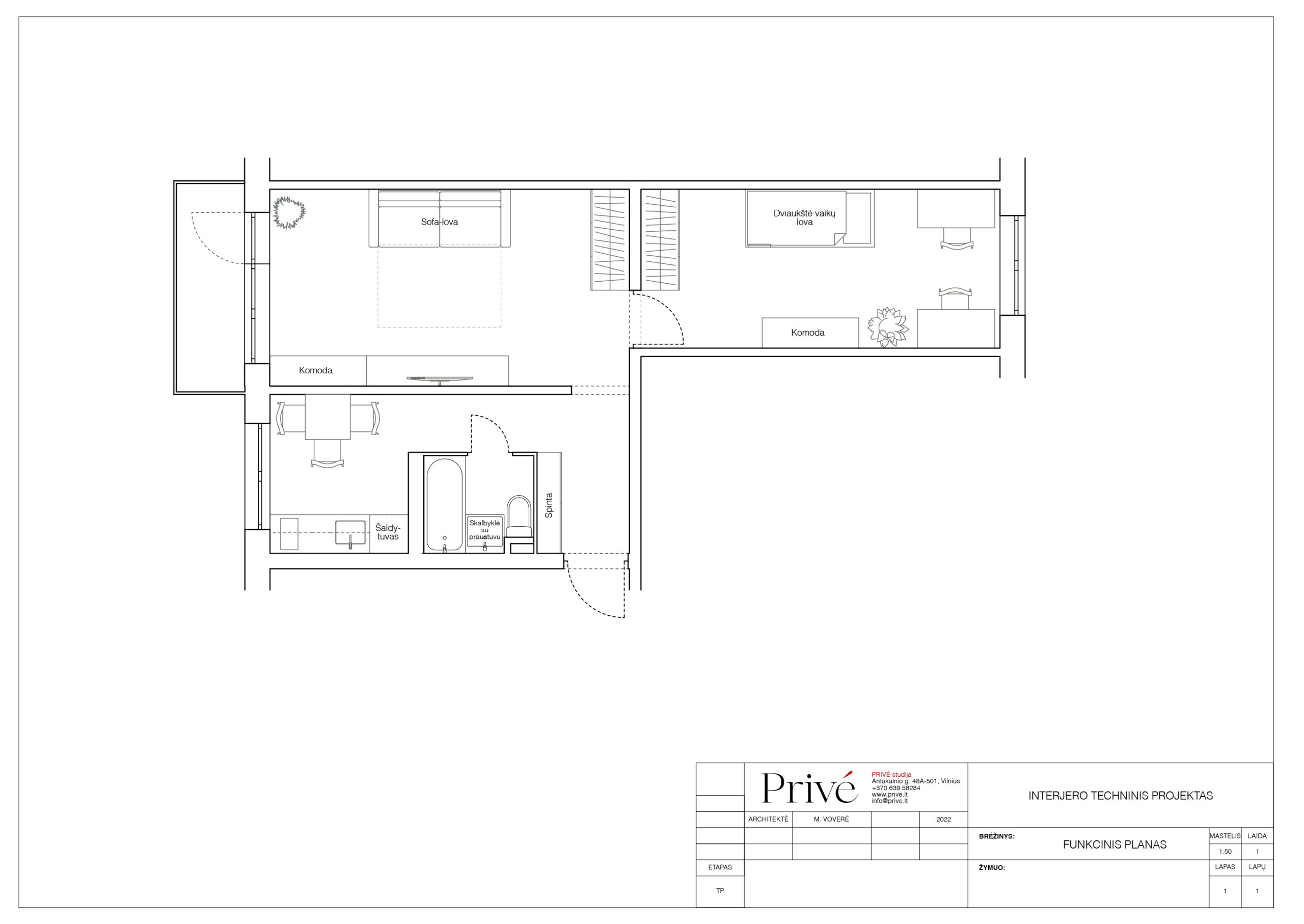
Daugiau sienų! Du atskiri kambariai didesnei šeimai

Atskiri kambariai – praktiškesnis pasirinkimas jaunai šeimai su vaikais, nuomai butą ruošiantiems savininkams ar tiesiog tiems, kurie nenori virtuvės svetainėje. Šis baldų planas – paprastas, bet funkcionalus.

Jei tokiuose namuose gyvens trys ar keturi žmonės, siūlyčiau išmintingai pasirinkti kelias funkcijas atliekančius baldus. Jei vaikų kambaryje pastatytumėte dviejų aukštų lovą, jame patogiai tilptų du mažyliai. Tamsus kambariukas, puikiai atskiriantis erdves, galėtų virsti pakankamai talpia drabužine. Tėvų kambaryje-svetainėje nepamainomas būtų kavos staliukas, prireikus virstantis valgomojo stalu ir sofa, nesunkiai paverčiama lova.

Nors kelių atskirų kambarių butai šiuo metu mažiau populiarūs naujos statybos namuose, jie turi daug privalumų ketinantiems savo turtą nuomoti. Verta nepamiršti, kad rinkoje itin daug dviejų kambarių butų, kuriuose gali gyventi tik vienas žmogus ar pora, tačiau nuomojant dviejų atskirų kambarių butą jis būtų patrauklus ir šeimai su vaikais ar studentams.

Vonios kambario, virtuvės ir koridoriaus išplanavimą plačiau nagrinėsiu kitame įraše. Galimybių perplanuoti net ir tokias nedideles erdves yra ne viena, tad kiekvienas galėtų jas įsirengti pagal savo asmeninius poreikius.  

pilka komoda vaikų kambaryje su žaislais
Medeinos Voverės kurtas interjeras

Ar tikrai senos statybos butai - tik gyvenimui
"iš bėdos"?

Išgirstu nuomonių, kad sena statyba – tik gyvenimui “iš bėdos”, o nauja – visapusiškai geresnė. Be abejo, yra įvairių atvejų. Dalis senų namų pastatyti nekokybiškai, kiti – labai nusidėvėję ir juos reiktų nugriauti. Tačiau nemažai jų yra geros kokybės, dalis – renovuoti ir tikrai arti miesto centro.

Esu girdėjusi ir minčių, kad senos statybos butai yra prastai išplanuoti, maži, juose netelpa skalbimo mašina ar indaplovė. Tai – tiesa. Tačiau būtų klaidinga manyti, kad tai – tik to laikmečio daugiabučių problema. 53 m2 trijų kambarių butas, ar 38 m2 dviejų kambarių butas nebėra retenybė naujos statybos namuose! 16 m2 bendra virtuvės, svetainės ir valgomojo erdvė? 3,5 m2 ploto vonios kambarys, kuriame reikia sutalpinti skalbimo mašiną ir rekuperatorių? Tik naujos statybos butuose!

Už panašią ar didesnę sumą įsigiję naujos statybos butą arba gyvensite labai toli nuo miesto centro ir tikrai pėstute nenueisite iki Katedros aikštės per 30 minučių, arba tapsite ne ką didesnio būsto savininku, kuriame taip pat sunkiai sutalpinsite viską, ko reikia patogiam gyvenimui.

Nelyginu šio buto su namu užmiestyje ar prabangiu butu senamiestyje! Tačiau galiu palyginti su panašaus ploto, bet du ar tris kartus aukštesnės kainos už kvadratą, naujos statybos butais Vilniuje. Nuoširdžiai tikiu, kad patogų, jaukų būstą galima sukurti ir tokio tipo namuose, todėl tikiuosi, kad pasidalinusi pilnu techniniu interjero projektu su Jumis prie to prisidėsiu!