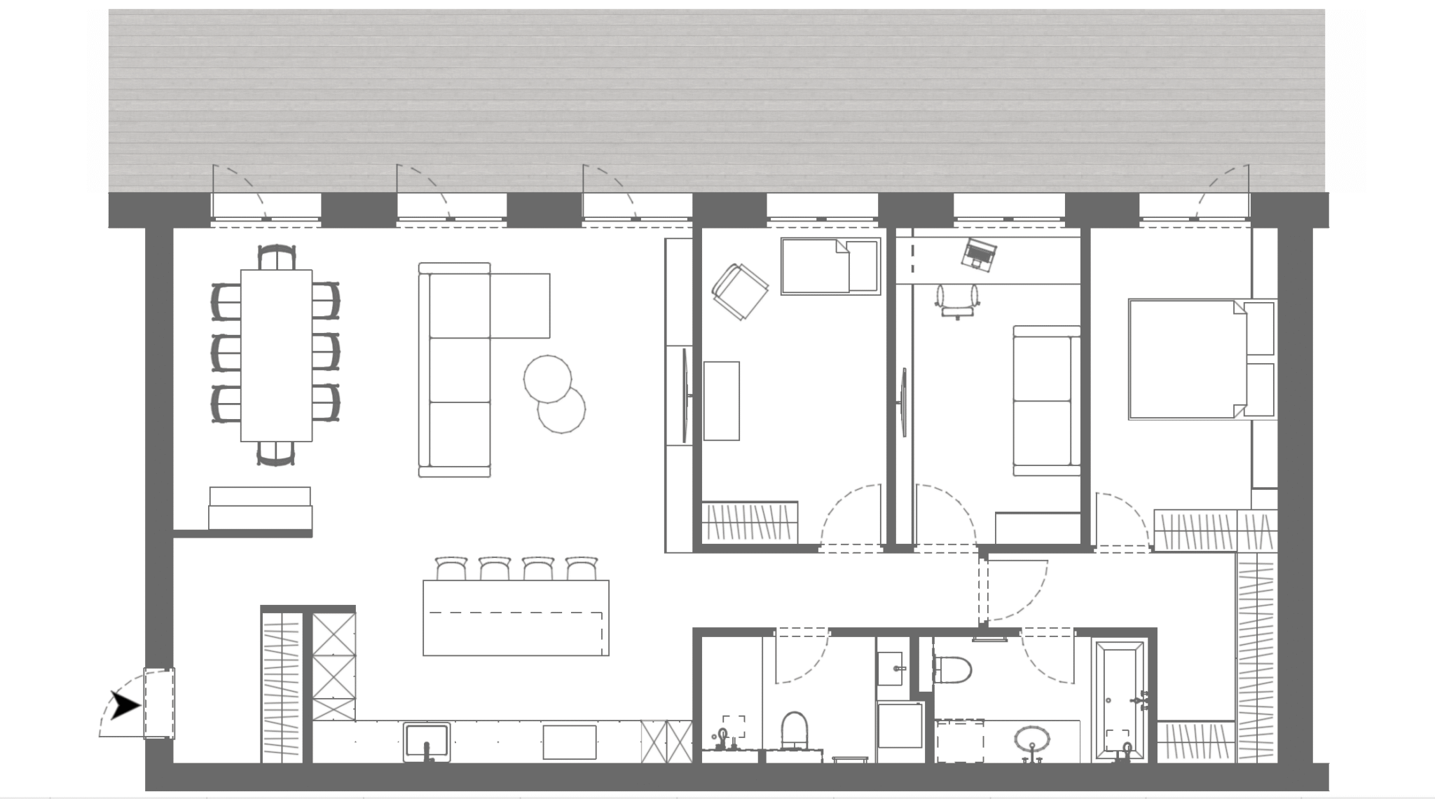
Subtilus, jaukus, kruopščiai suplanuotas ir tarnaujantis savo gyventojams – toks yra šis būstas. Šis interjero projektas kuriamas naujos statybos bute Užupyje, darbų pradžia – 2026 m.
Sklandžiam svetainės veikimui ir jūsų naršymo patirties gerinimui naudojame slapukus. Naršydami toliau, sutinkate su slapukų įrašymu.